Descrizione
4 Camere con Bagno Privato (Possibilità di 5) | 2,3 Ettari di Terreno | Eco-Sostenibile | Pronta da Abitare
Un'Autentica Oasi di Pace nel Cuore del Salento
Circondata da ulivi secolari e muretti a secco, questa affascinante masseria di 360 mq, completamente ristrutturata nel 2019, rappresenta la perfetta fusione tra architettura tradizionale pugliese e comfort moderni.
L'immobile è iscritto nel Registro Regionale del Patrimonio Architettonico Rurale Diffuso, ed è stato restaurato con materiali locali, sistemi eco-sostenibili e grande attenzione ai dettagli.
Ideale come residenza privata, casa vacanze di lusso o investimento per attività ricettiva.
Caratteristiche Principali
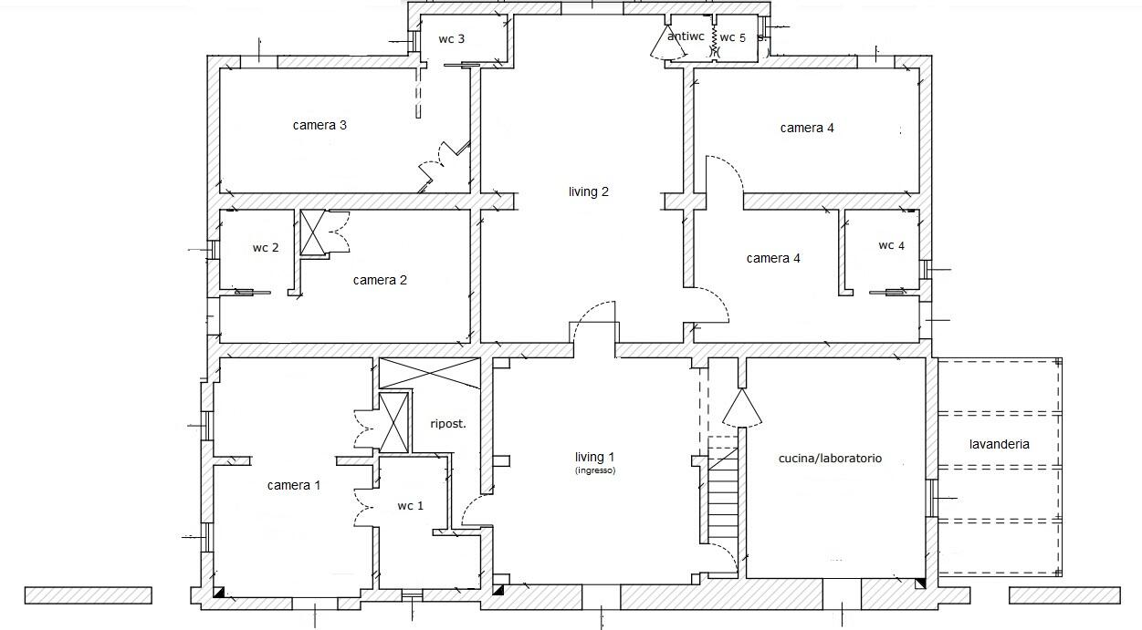
- Superficie interna: circa 360 mq
- Terreno: circa 2,3 ettari (~5,7 acri)
- Camere da letto: 4 con bagno privato (possibilità di ricavare una 5ª camera)
- Bagni: 4 en-suite + 1 bagno di cortesia
- Pavimenti: in autentica pietra leccese
- Climatizzazione: A/C caldo/freddo in ogni ambiente
- Riscaldamento: stufa idro policombustibile + radiatori in ghisa
- Infissi: in alluminio con taglio termico
- Acqua: pozzo artesiano + impianto di irrigazione automatico
- Energia:
- Impianto fotovoltaico da 6,75 kW
- Sistema solare termico da 300 litri per l’acqua calda
- Arredi: realizzati su misura da artigiani locali, con materiali riciclati e recuperati
Spazi Esterni
- Piscina privata con terrazza solarium
- Oltre 350 alberi tra ulivi e piante da frutto
- Elegante serra in ferro battuto, perfetta per colazioni o tè pomeridiani
- Portico ombreggiato per pranzi e cene all’aperto
- Zone lounge, locali tecnici e di servizio
- Giardino mediterraneo con flora autoctona
Posizione
Situata in una zona tranquilla tra Corigliano d’Otranto e Maglie, la proprietà offre riservatezza ma anche vicinanza a servizi e collegamenti.
- 5 minuti dai paesi vicini e dai servizi principali
- 15 minuti da Otranto e dal Mar Adriatico
- 30 minuti da Lecce
- 60 minuti dall’Aeroporto Internazionale di Brindisi
Una base strategica per esplorare le spiagge più belle, le città storiche barocche e la cucina salentina, perfetta per chi cerca una residenza stabile o un investimento turistico stagionale.
Sostenibilità e Valore Storico
La masseria è un esempio virtuoso di restauro sostenibile e valorizzazione del territorio:
- Sistemi energetici ad alta efficienza (solare termico e fotovoltaico)
- Utilizzo di materiali locali e recuperati
- Dettagli e finiture realizzate da artigiani del posto
Un’abitazione che rispetta la memoria storica, vive confortevolmente il presente e guarda a un futuro sostenibile.
Informazioni Aggiuntive
- Regolarmente registrata e in regola con la documentazione urbanistica e catastale
- Abitabile da subito – nessuna ristrutturazione necessaria
- Venduta arredato
- Servizi di gestione e manutenzione disponibili
- Assistenza completa per acquirenti stranieri durante tutto il processo di acquisto
✨ Vivere il Salento Autentico
Questa non è solo una proprietà, ma un invito a vivere il ritmo lento e autentico del Salento. Tra luce, pietra e ulivi, ogni spazio racconta una storia di bellezza, tranquillità e autenticità.
Contattaci Oggi Stesso
Richiedi la brochure completa, prenota una visita privata, oppure parlaci del tuo progetto di acquisto in Puglia.
Ti offriamo supporto personalizzato e multilingue dal primo contatto fino al rogito notarile – e anche OLTRE.
Dotazioni



Pavimentazione in pietra leccese, aria condizionata caldo/freddo in tutti gli ambienti, stufa idro policombustibile collegata ad impianto di riscaldamento con radiatori in ghisa, infissi in alluminio a taglio termico, solare termico per produzione acqua calda (300lt), impianto fotovoltaico da 6,75 kW, impianto di irrigazione, arredi completamente di recupero e di artigianato locale, cancello automatico.